This is property owned personally by Rod Fife He is the
owner and a Real Estate Agent
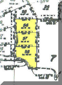
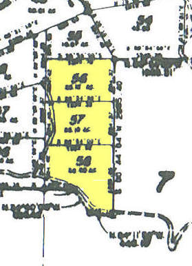
Big Hollow Acreages
Lot
# 56 - 25 Acres - $40,000
Lot
#57 - 25 Acres - $35,000 Sold & closed
Lot
#58 - 32 Acres - $49,900 - Sold & Closed
Maps.live.com gives you the opportunity to look at the elevations
of the property and
get a general feel for the vegetation.
LINK
TO MAPS.LIVE.COM
 |
Location: Approximately 35 miles south
of Provo; 12 miles north |
 |
of Fairview and 7 miles south of Indianola; 6.5
miles off of Highway 89. |
 |
Access: From Highway 89 the road is
improved gravel road that is |
 |
maintained by the county. The last
three miles of the county road |
 |
has limited care during the winter
months. The last 0.8 of a mile |
 |
is in the Big Hollow
subdivision. The road is rutted. It shows |
 |
limited care and seems to
be taken care of by individual land |
 |
owners. Cars can access it with
caution in good weather but |
 |
normally a four wheel drive vehicle is
preferred, especially after wet weather. |
 |
Elevation: Between 6800 and 7100 feet
above sea level |
 |
Flora: Scrub Oak, Juniper, Pinion
Pine, Sage Brush; Prickly Pear Cactus; Native Grasses |
 |
Great ATV access to trails within Big
Hollow and to roads going north and south |
 |
1/2 a share of water can be added for
$3500 |
All overlays and highlights are
approximate
*Pictures are not thumb nailed*
Overview Map

Vegetation
Surrounding area including Whitaker Springs Water Hollow Road
& Canyon View Dr.
Subject property including Lot 58 bordering bottom Road, Lot
57 and Lot 56
Click on Beveled images to enlarge

